Running-Rabbit-Logo ArchRabbit Logo
Info

Upgrade
Columbia, MD

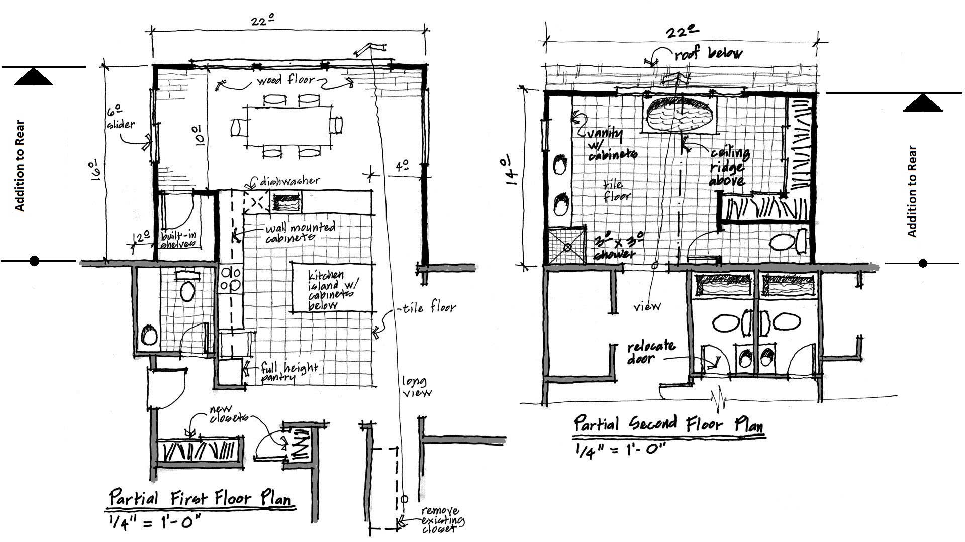
The client's goal of expanding the kitchen to provide more space for food preparation and to provide enough space for an eating area was met by placing an addition on the rear of the house. This addition also provided space for a large master bathroom suite on the second floor above the kitchen and eating area. Last, but not least, the client wanted to improve the "curb appeal" by replacing the existing gambrel roof.


Columbia_Elevation
Proposed Front Elevation      1/3
Columbia_Existing_Elevation
Existing Front      2/3
Columbia_Plan
Floor Plans      3/3