Running-Rabbit-Logo ArchRabbit Logo
Info

Addition
Jessup, MD

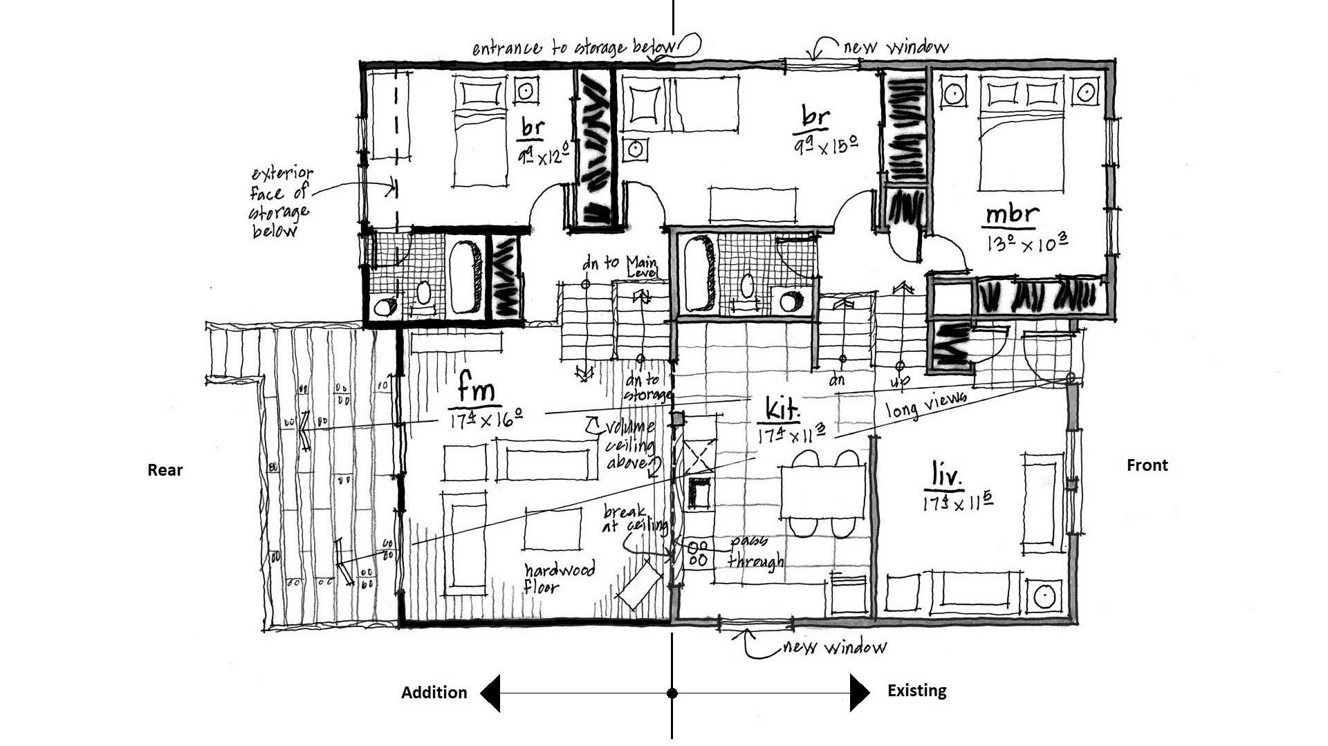
This existing split level home in Jessup, MD, had two bedrooms that were half a level above the main level, which had the living room and a large eat-in kitchen. The owner wanted to add a third bedroom, a bathroom and a family room. The new bedroom and bathroom would be on the same level as the two existing bedrooms, but without access to the rest of level. A new stair would provide access from the new bedroom to the new family room on the main level. The design created a sense of spaciousness by opening up the connection between the existing kitchen and the new family room with a pass-through opening between the two spaces. The volume ceiling of the family room, a result of the split level aspect of the home, contributed to the openess and spaciousness of the addition.


Jessup_Elevation
Rear Elevation      1/3
Jessup_Existing_Elevation
Existing Rear Elevation      2/3
Jessup_Plan
Floor Plan      3/3